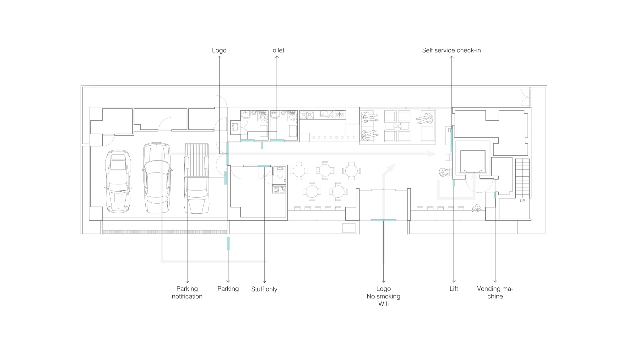
Belken Hotel
Company: Triumph Design Resource S.R.L.
Client: Belken Hotel
Art Director: Naohiko Mitsui, Supervisor: Haruka Furuyama, Gen Ito, Interior Design: Magdalena Izuzquiza, Marie-Madeleine Pfeffer, Jose Roca, Brand Design: Gen Ito, Vinson Wang
Belken hotel is a Tokyo based hotel targeting business people. The hotel provides a well-furnished lobby and rooms. In this project, we create all the identity, interior, and exterior design. I was in charge of the logo, wayfinding signages, keycard, business card, and website design.
Belken Hotel
Company: Triumph Design Resource S.R.L.
Client: Belken Hotel
Art Director: Naohiko Mitsui, Supervisor: Haruka Furuyama, Gen Ito, Interior Design: Magdalena Izuzquiza, Marie-Madeleine Pfeffer, Jose Roca, Brand Design: Gen Ito, Vinson Wang
Belken hotel is a Tokyo based hotel targeting business people. The hotel provides a well-furnished lobby and rooms. In this project, we create all the identity, interior, and exterior design. I was in charge of the logo, wayfinding signages, keycard, business card, and website design.
Belken Hotel
Company: Triumph Design Resource S.R.L.
Client: Belken Hotel
Art Director: Naohiko Mitsui, Supervisor: Haruka Furuyama, Gen Ito, Interior Design: Magdalena Izuzquiza, Marie-Madeleine Pfeffer, Jose Roca, Brand Design: Gen Ito, Vinson Wang
Belken hotel is a Tokyo based hotel targeting business people. The hotel provides a well-furnished lobby and rooms. In this project, we create all the identity, interior, and exterior design. I was in charge of the logo, wayfinding signages, keycard, business card, and website design.









